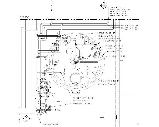
• Orthographic plans, sections and iso arrangements can quickly be cut from the 3D
    model.
  • Orthographic drawings are dimensioned and annotated for construction documents.
  • Level of dimensioning and annotation vary depending on project design strategy.
Orthographic Dwgs
Key Benefits